Инвертировать: A A
Шрифт: A A A
Интервал: Kk K k K  k
Изображения: Вкл./ Выкл.

Вы здесь

Сообщение о возможном установлении публичного сервитута

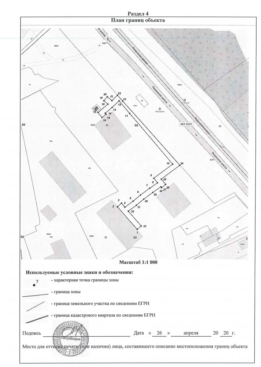
В соответствии с поступившим ходатайством об установлении публичного сервитута, администрация городского округа Люберцы Московской области информирует о возможном установлении публичного сервитута в соответствии со ст.39.41 Земельного кодекса Российской Федерации (далее – Кодекс), в целях размещения объекта газового хозяйства - Газораспределительная сеть поселка Томилино домов связи, по адресу: Московская область, Люберецкий район, городское поселение Томилино, Рязанское шоссе, кадастровый №50:22:0000000:9389 его беспрепятственной эксплуатации, капитального и текущего ремонта, в отношении земельного участка государственная собственность на который не разграничена общей площадью 606 кв.м, расположен: Московская область, р-н Люберецкий. Правообладатели земельных участков, в отношении которых испрашивается публичный сервитут, если их права не зарегистрированы в Едином государственном реестре недвижимости, в течение тридцати дней со дня опубликования сообщения, предусмотренного пп.1 п.3 ст.39.42 Кодекса, подают в орган, уполномоченный на установление публичного сервитута, заявления об учете их прав (обременений прав) на земельные участки с приложением копий документов, подтверждающих эти права (обременения прав). В таких заявлениях указывается способ связи с правообладателями земельных участков, в том числе их почтовый адрес и (или) адрес электронной почты. Правообладатели земельных участков, подавшие такие заявления по истечении указанного срока, несут риски невозможности обеспечения их прав в связи с отсутствием информации о таких лицах и их правах на земельные участки. Такие лица имеют право требовать от обладателя публичного сервитута плату за публичный сервитут не более чем за три года, предшествующие дню направления ими заявления об учете их прав (обременений прав). Обладатель публичного сервитута в срок не более чем два месяца со дня поступления указанного заявления направляет правообладателю земельного участка проект соглашения об осуществлении публичного сервитута и вносит плату за публичный сервитут в соответствии со ст.39.46 Кодекса. Описание местоположения границ публичного сервитута (прилагается). Заявления об учете прав на земельные участки принимаются в письменной форме в течение 30 дней со дня опубликования настоящего извещения по рабочим дням через любой МБУ «Многофункциональный центр предоставления государственных и муниципальных услуг городского округа Люберцы», по адресу: 1. Отдел приема заявителей «Центральный», расположен по адресу: Московская область, город Люберцы, улица Звуковая, дом 3. 2. Отдел приема заявителей «Ухтомский», расположен по адресу: Московская область, город Люберцы, Октябрьский проспект, дом 18, корпус 3. 3. Отдел приема заявителей «Северный», расположен по адресу: Московская область, город Люберцы, улица Инициативная, дом 7Б. 4. Отдел приема заявителей «Мкр.1А», расположен по адресу: Московская область, город Люберцы, улица 8 Марта, дом 30Б. 5. Отдел приема заявителей «Томилинский», расположен по адресу: Московская область, городской округ Люберцы, рабочий поселок Томилино, микрорайон Птицефабрика, дом 4/1. 6. Отдел приема заявителей «Красковский», расположен по адресу: Московская область, городской округ Люберцы, дачный поселок Красково, улица Школьная, дом 5. 7. Отдел приема заявителей «Малаховский», расположен по адресу: Московская область, городской округ Люберцы, рабочий поселок Малаховка, улица Сакко и Ванцетти, дом 1. 8. Отдел приема заявителей «Октябрьский», расположен по адресу: Московская область, городской округ Люберцы, Рабочий поселок Октябрьский, ул. Ленина, д. 39 9. «ТОСП» расположен по адресу: Московская область, город Люберцы, Некрасовский проезд, дом 6. График работы МУ «Люберецкий МФЦ»: Дни недели Время работы Понедельник - воскресенье 8.00 – 20.00 без перерыва на обед ЕДИНЫЙ НОМЕР КОЛЛ-ЦЕНТРА 8-800-550-50-30 Официальный сайт в информационно-коммуникационной сети «Интернет»: http://lubmfc.ru. Адрес электронной почты в сети Интернет: mfc-lyubertsymr@mosreg.ru Дополнительная информация приведена на сайтах: - РПГУ: uslugi.mosreg.ru - МФЦ: mfc.mosreg.ru или направляются на адрес электронной почты: sk@lubreg.ru Ознакомиться с ходатайством об установлении публичного сервитута и прилагаемым к нему описанием местоположения границ публичного сервитута можно в администрации городского округа Люберцы Московской области, по адресу: Московская область, городской округ Люберцы, г. Люберцы, Октябрьский проспект, д. 190, каб.101 (в приемные дни, в приемное время: среда с 10:00 до 17:00). Настоящее сообщение о возможном установлении публичного сервитута размещено на сайте: www.люберцы.рф

 

Дата новости: 
20 мая 2020